您现在的位置: 首页 >> 产品展示 >> 乳化机系列 >> 电池粉料混合搅拌机

 

产品名称: 电池三元、正极材料专用混合搅拌设备
 
产品工作视频介绍
 


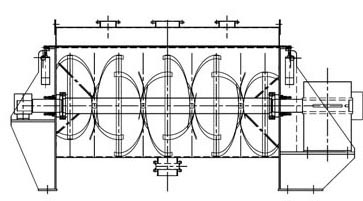
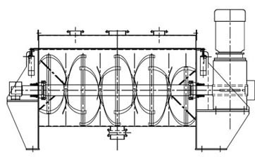
针对钴酸锂、磷酸铁锂、三元、正极材料等锂电池粉体,南通克莱尔混合设备有限公司螺带混合机经过以下特殊设计,适应电池粉体材料的混合搅拌工艺:


1、设备筒体具有70%左右的装载率,装载系数高,在同样装载量的情况下,设备占用空间小。
2、“U”形筒体与两端板组焊成一体,筒体整体强度高,密封可靠。
  目前市场上存在“U“形槽体一端采用螺栓固定式、存在密封性能以及堆积残留料问题
3、筒体内部采用先进的内衬工艺,确保四氟板与不锈钢母材的粘接力,同时厚度2-3mm,远远大于一般的喷涂工艺,
  具有更长的使用寿命
4、搅拌装置采用打断式形式,在确保混合均匀度的同时,具有更少的功率消耗,更适用于一些高密度物料。
  搅拌装置根据客户要求,可喷涂HALAR(哈拉)/WC(碳化钨)
5、搅拌主轴与两端传动轴法兰连接,特别适合后期维护。特别是几年后当内部搅拌器喷涂出现磨损需要重新喷涂
  时、可以随时取出内部搅拌器
6、两端轴密封采用气密封形式,具有优秀的密封性能,确保两端不漏粉
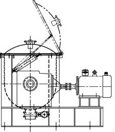
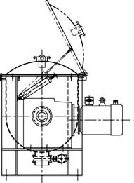
7、上盖可以满足整体气动开启和关闭、随时检查内部搅拌器以及U形槽内壁喷涂磨损情况
  上盖跟U形槽之间采用新型密封方式、特制密封条、确保运行搅拌过程中不漏粉
  上盖跟U形槽之间采用特制铰链装置、不断裂、吻合性好
8、动力与结构选配合理,可实现负载启动、变频调速、匹配品牌变频器
9、产品型号多,从实验室到大生产(30立方)均有不同机型满足要求
10、整套设备配置PLC人机界面操作系统、提高自动化操作程度
11、可以匹配称重模块系统
12、目前有三种结构形式满足不同工艺需求、选型时可咨询公司0513-83308511

 
产品通用几种结构形式:
结构1
 
结构2
 
结构3
 
U形槽体两端密封--最新研发恒压机械密封(专利号:2019 2 0865999.4)
引领国际潮流--规避传统盘根密封、气密封形式弊端、确保轴端不漏粉
 
 
 
 
 
 
 
产品图片
上盖开启检查内部喷涂磨损时用   内部搅拌器喷涂WC(碳化钨)
 
     
 
 
 
PLC控制控制图
 
技术参数表(以下数据仅供参考,具体参数在订货前以设备方案图为准!)
型号
全容积
(M3)
有效容积
(M3)
外形尺寸(MM)
重量
(KG)
RB-1/4
0.008
0.056
700
232
500
70
RB-1
0.037
0.025
1050
600
700
260
RB-5
0.2
0.14
1700
1000
1030
450
RB-10
0.37
0.26
2200
1020
1000
600
RB-18
0.6
0.42
2500
1100
1130
1000
RB-25
0.85
0.6
2550
1250
1200
1400
RB-36
1.15
0.8
3010
1810
1200
1800
RB-52
1.57
1.1
3100
1950
1350
2200
RB-62.5
2
1.4
3400
2000
1800
2900
RB-71
2.25
1.6
3800
2180
2130
3200
RB-80
2.5
1.7
3950
2180
2130
3300
RB-100
3.1
2.1
4210
2300
2184
4000
RB-120
3.7
2.6
4275
2380
2210
4300
RB-155
4.7
3.3
4350
2650
2240
5700
RB-180
5.5
3.85
4900
2870
2280
7600
RB-215
6.6
4.6
5300
3100
2300
8900
RB-270
8.5
6
5300
3400
2500
11500
RB-325
10
7
5600
3700
2900
12200
RB-385
12
8.4
5900
4000
3200
17000
RB-515
16
11
6452
4000
3200
20000
RB-600
18
12.6
6452
4000
3530
22000
RB-800
24
16.8
6050
4000
3370
28000
RB-1000
30
21
6500
4200
3600
35000

 



Copyright 2013 南通克莱尔混合设备有限公司 电话:0513-83308511/83309511
地址:江苏启东市民主工业园区恒丰路82号  邮箱:
ntclare@ntclare.com  苏ICP备08105740